Line up物件一覧
NEW
中古マンション
最終更新日:
通勤も、子育ても、空間も。“ととのい”の4LDK
広島市西区中広町1丁目|4LDK|2008年築|フローレンス中広城南通り
スーパーも学校も、電停もバス停も。ちょうどよくそろっていて、忙しい日々に無理がかからない。
アクセスも生活の動線もぐんとスムーズに。中心街から少しだけ距離がある中広町だからこそ、便利と落ち着きがいいバランスで共存している。
水まわりを含めた一部リフォーム済の室内は、家具を入れればすぐ暮らせる状態。
「これならすぐに、家族で暮らしはじめられそう」
そんなふうに思える“ちょうどいい”がそろった住まいです。
- 販売価格
- 3,980万円
広島市
西区
この物件の魅力
- # 街チカ快適エリア
- # 自転車移動しやすい立地
- # ペットと暮らせる家
- # 中広町中古マンション
- # 子育て世帯におすすめの4LDK
- # 一部リフォーム・設備交換済み
物件のご紹介
最初は、そこまで深く考えていませんでした。
子どもたちも慣れているし、駅までバスに乗ればどうにかなる。
今の賃貸は、場所は少し不便でも、家賃もそれなりだったし。
でも、最近ふと気づいたんです。
平日の朝のバタバタも、塾の送り迎えの渋滞も、スーパーへの移動も——
「ちょっと遠い」ことが、積み重なると意外とストレスになるなって。
そんなときに出会ったのが、中広町のこの住まいでした。
電停もバス停も徒歩圏内。
中心街までのアクセスは今より格段によくて、しかも自転車でサッと動ける平坦地。
「ここなら、もっと暮らしが回るかもしれない」
そう思わせてくれる立地でした。
そして、室内を見て驚きました。
トイレ・コンロ・食洗器が交換済みで、水まわりがすでに整っている。
クロスや床も新しくなっていて、家具を運べばすぐに生活が始められそうな状態。
ナチュラルな色味でまとめられた室内は、やさしくて、落ち着いていて、どこか“無理しなくていい感じ”が漂っていました。
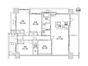
LDK横の和室は子どもの宿題スペースにぴったりで、全室収納付きの4LDKは、将来を見据えても安心の間取り。
2階角部屋というのも、静かに暮らしたい私たちにとっては魅力でした。
ペット可というのもポイントで、「将来、子どもが巣立ったら猫を迎えようか」
なんて話も自然とできるような、ゆとりのある住まいです。
“アクセスも、空間も、ちょうどいい”がそろった住まい。
あなたも、今の賃貸を卒業して家族に合った暮らしをはじめませんか?

-
管理費:8,000円
-
修繕積立金:10,120円
-
施工会社:東海興業
-
管理会社:章栄管理㈱
物件詳細
- 住所
- 広島県広島市西区中広町1丁目2-19 フローレンス中広城南通り
- 専有面積
- 84.32㎡/25.50坪
- バルコニー面積
- 27.01㎡/8.17坪
- 小・中学校 学区
- 広瀬小学校
中広中学校 - 最寄り駅/バス停
- 広島電鉄「寺町」徒歩約8分
「中広町」バス停徒歩約1分 - 災害指定区域
- 河川洪水浸水想定区域 0.5~3.0m
- 周辺環境・補足情報など
- なごみ保育園:徒歩4分(243m)
小河内保育園:徒歩8分(628m)
広島市立広瀬小学校:徒歩6分(449m)
広島市立中広中学校:徒歩12分(899m)
Aプライス中広店:徒歩2分(133m)
フレスタ上天満店:徒歩7分(557m)
セブンイレブン広島中広1丁目店:徒歩3分(225m)
セブンイレブン広島中広3丁目店:徒歩5分(378m)
ウォンツ中広町1丁目店:徒歩5分(357m)
広島中広町郵便局:徒歩3分(177m)
広島信用金庫中広支店:徒歩2分(120m)
山陰合同銀行広島西支店:徒歩11分(862m)
ゆうちょ銀行広島西店:徒歩11分(833m)
物件一覧へもどる

























